Updated March 24, 2021 at 10:00 am: In response to feedback about my remarks regarding the area around the “Bridge” station on the new Metrolinx alignment, I have added a section at the and reviewing the Langstaff Gateway Plan.
On March 18, 2021, Metrolinx released their Initial Business Case for the Yonge North Subway Extension (YNSE) to Richmond Hill together with a refinement, a Supplementary Analysis of their preferred option. There is also a short presentation deck on this subject on the agenda for the Metrolinx Board Meeting of March 25, 2021.
The IBC was originally completed in mid-2020 but it has not been public until now. Some aspects of it were reported at the time in the Toronto Star. (The report appears in the meeting agenda for September 10, 2020 in the private session.)
Updated March 21, 2021 at 9:20 am: A reference page linking to YNSE reports has been added for those interested in the proposal’s history.
The project chronology shows how long this extension has been in various planning stages. The Metrolinx Benefits Case Analysis was published over a decade ago in 2009, and it was updated in 2013. Options studied at the time had more to do with staging than with alignment choices:
- Option 1: A six stop extension from Finch Station to Richmond Hill Centre with intermediate stations at Cummer, Steeles, Clark, Royal Orchard and Langstaff.
- Option 2: A phased extension first to Steeles including Cummer Station, with the segment north to Richmond Hill to follow.
- Option 2A: In addition to the shorter subway extension, service on the GO Richmond Hill line would be improved to every 20 minutes in the peak period.
Regional growth plans tilted the preference to Option 1 as a way to support a node in Richmond Hill.
The fundamental problem which the IBC and its supplement seek to address is that the cost of the extension had grown to $9 billion in 2019 from an original estimate in the 2007 approved plan of less than $3 billion. The project was taken over by the province as part of its rapid transit upload after preliminary design and engineering by TTC and YRRTC (York Region’s rapid transit agency) showed a substantial increase in the cost.
Part, but certainly not all, of that change is explained by inflation, and one must wonder whether the original estimate was low-balled to gain approval for a project with political appeal in York Region. Another problem is that “cost” is reported in different ways by municipal and provincial planners, and it is not clear that all of the increase is on an apples-to-apples comparative basis.
In the June 2020 IBC, Metrolinx evaluated three options as shown on the map below.
- Option 1 (turquoise) is the original alignment that follows Yonge Street to a station at Langstaff, and then swings east to a terminal at Richmond Hill Centre.
- Option 2 (blue) includes a new stop “Bridge-West” at Highway 407 and a station at High Tech Road.
- Option 3 (pink) turns off of Yonge at Kirk Drive, cuts under the Holy Cross Cemetery and follows the CN Bala Subdivision with stations at “Bridge-Centre” and an High Tech Road. This was the preferred alignment in the IBC.

Here is a closer view of the north end of the line showing all three options.

Option 3 shown in pink above is the preferred one for reasons I will describe below, but there were concerns that it cut under the corner of Holy Cross Cemetery. This led to the alignment proposed in the Supplementary Analysis.
At the Don River crossing, the revised alignment swings west and then turns east following a route to the CN Bala Subdivision (GO’s Richmond Hill corridor) further south than in the original Option 3 shown above. The subway runs under the CN corridor where it passes under the cemetery, and then surfaces to run alongside the railway tracks.

Another major change in the design is that some stations have vanished, although depending on how the budget works out, they could gain a reprieve. The affected stops are Cummer/Drewry, Clark and Royal Orchard.
How Did Metrolinx Save So Much?
I asked Metrolinx how there could be such a large-scale change in the cost estimate from $9 billion down to $5.6 billion. They replied:
One of the primary reasons staff were able to reduce costs was by limiting the amount of excavation required for tunnels and stations. This is achieved by taking the northern segment of the alignment east of Yonge Street to meet the CN rail corridor, allowing the tracks to rise to the surface and run at grade, instead of underground.
The previous proposal also called for an underground train storage facility near the end of the extension, along with a bus terminal at Steeles station that was planned be built below the ground. Our design and planning teams determined that placing these facilities at ground level will significantly reduce costs while maintaining important benefits of the project.
Placing the train storage facility at surface level brings the proposal in line with the TTC’s five subway train maintenance and storage facilities, which are also above ground. This approach is common for transit support facilities all over the world. Cities like Vancouver, Chicago, and New York all have ground level train storage facilities that successfully integrate into residential areas while meeting the needs of their transit networks.
Source: Email from Scott Money, Metrolinx Media Relations, March 19, 2021
A saving of over one third is a substantial change. All together this involves:
- Surface construction from Holy Cross Cemetery northward including the new rail yard in Richmond Hill that was formerly underground
- Replacement of a very large underground bus interchange at Steeles Station with a surface facility that will be integrated into new development
- Deletion of three stations
Another change between the 2007 plan and the 2020 IBC is that originally the line was to cross the Don River on a double-deck bridge with Yonge Street on the upper level. This has been changed to a tunnel under the river. There is no discussion of how this might have affected the line’s cost.
The new alignment requires the line to shift west of Yonge at the river crossing and this affects the viability of a shared bridge. Moreover, continuous tunneling under the river avoids the need for separate tunnel boring launch sites for the north and south segment, offset by the effects of a deeper route. (Metrolinx has not yet replied to my question on this matter.)
Between the IBC and the Supplementary Analysis, the infrastructure cost estimate was further reduced. This gives headroom for one of the comparatively minor stations on the route to be restored.
Stations and Demand
The stations generally are referred to as three types:
- Primary Stations: Steeles, Richmond Hill Centre (option 1) and Bridge (options 2-3) are “primary” stations because they are major transfer points for surface bus routes and demand at them is strong,
- Cummer, Clark and Royal Orchard are “neighbourhood” stations.
- Langstaff (option 1) and High Tech (options 2-3) stations are classed as “complementary urban core stations” because of their role in supporting development.
A major function of Steeles Station is to intercept a very large flow of passengers, primarily on TTC routes like 60 Steeles West and 53 Steeles East (and their express counterparts) before they reach Finch Station. About 9,400 passengers are expected to transfer between bus and subway at this station.
The original plan had a huge underground bus loop running along Steeles Avenue (think Lawrence Station on steroids). This has been shifted to the surface at substantial cost saving, and will probably be incorporated in a planned development.
The Board presentation deck includes the following comment about Steeles Station:
Steeles Station will be a hub for local bus routes as well as a future rapid transit line along Steeles Avenue.
Presentation deck: P. 3
I asked Metrolinx what this meant, but they were unable to explain.
The “neighbourhood” stations were the first to go as a potential cost saving. Their projected demand is low enough that they actually have difficulty making a “business case” on their own because they depend entirely on local traffic. This begs the future of rapid transit stations anywhere other than regional interchanges and development nodes and could have implications for future rapid transit proposals.
A related problem is that much discussion about the “right” way to build transit depends on density at stations as opposed to within the catchment area of feeder routes. It is ironic that the most important stations on this extension depend primarily on feeder buses and (in the case of Langstaff Station) commuter parking for their demand.
The projected AM peak hour demand for stations in each option is shown below:

The importance of bus transfer traffic is shown below. Note that these are all day figures while the counts above are for the AM peak hour. The term “BAU” refers to “Business As Usual”, that is to say, the demand if the extension were not built. The huge numbers at Finch reflect the volume of feeder bus service needed to bring all of these riders to the terminal. (Note that this includes riders transferring from the Finch bus services who will not shift to stations further north.)

The IBC notes that strong ridership for Option 1 depends on riders from the proposed parking at Langstaff Station.
Langstaff Station is proposed to include a commuter parking lot facility. This lot is located on the Hydro lands to the southwest quadrant of Yonge Street and Highway 407. Options 2 and 3 assume that there would be no commuter lot for the northern stations in the ridership model. The modelling results suggest that there is a demand for park-and-ride access. The difference in transfers for the northern stations noted above is partially attributable to this availability of parking, resulting in less need for bus transfers when compared to Option 2 and Option 3. The impact of parking will be reviewed in more depth through the Preliminary Design Business Case.
IBC: P. 99
I asked Metrolinx if they had demand breakdowns by mode for all stations, a reasonable question considering that specifics for bus transfer and walk in traffic are cited for some stations. Metrolinx replied:
The next stage in planning for the Yonge North Subway Extension includes the release of the Preliminary Design Business Case (PDBC), which will further refine the project’s design, alignment, and benefits. Parking will be evaluated in more depth through the release of the PDBC.
Email from Scott Money, Metrolinx Media Relations, March 19, 2021
A deeply troubling set of numbers in the projections is the transit mode share in the Yonge Street corridor. Although the YNSE will carry somewhat more riders than the buses do today, the mode share will shift by less than one percent. Overall, transit will carry only about one fifth of the total demand in the corridor.

This says something about the overall attractiveness of transit and the degree to which it will actually support growth in the region.
A further problem lies with the low number of new transit riders who will be attracted to the line. This has compounding effects through the evaluation including:
- Marginal revenue from the extension depends on new riders who will pay subway fares that the TTC is now not receiving. If most riders are already on the system, there is little new revenue to offset operating costs of the subway. This is the situation with the Vaughan extension where most of the riding is not “net new” to the TTC even though the subway’s operating cost is almost entirely on the TTC’s shoulders, not York Region’s.
- Any benefits ascribed to reduction of car travel (reduced pollution, less congestion, fewer accidents) depend on actually shifting people out of cars. Riders who are already on buses will not contribute to this shift. This is separate from the fundamental problem that any capacity released by an auto-to-transit shift will backfill due to latent demand and there will be no real saving on the environmental account. If anything, the removal of large number of buses from the corridor might encourage additional auto traffic.
- It is self-evident that if most riders are already using transit, they do not represent new residents or workers in planned developments. This begs the question of whose demand projections and land use projections should be believed. York Region’s projections are somewhat higher than the Metrolinx numbers. This problem is common to new nodes that are served by a major transit corridor from only one direction. Many who will commute in do not live in the subway’s catchment area, and those who will commute out might well work east, west or north of Richmond Hill where the subway does not go.

The change in Vehicle Kilometres Travelled (VKT) is shown below. This is trivial compared to overall vehicle mileage in the region, and is a direct result of the relatively low number of net new transit trips. Note also that Option 3, with its absence of parking, produces the least change in vehicle use.
One option that Metrolinx never studies in this context is the possible benefit of substantial investment in local transit service. How many more riders might the subway get (together with the benefit of avoided auto travel) if only local service were substantially improved?

Where is GO Transit?
When the Richmond Hill subway was evaluated back in 2007, the only option that included an “improvement” on GO rail service had two components — a BRT operation on Yonge Street, and a 20-minute service of GO trains. The BRT service was unable to handle projected demand, and the trains, needless to say, did not attract many riders on that headway.
Metrolinx often complains that the Richmond Hill corridor would be expensive to upgrade, and that there are issues for the portion of the corridor owned by CNR, but there has never been a comparison of the cost of more frequent service beyond what can be shoe-horned into the existing track.
The IBC suggests that Metrolinx has given up on the corridor:
It has been noted that the GO Rail system does not serve all parts of the Greater Toronto Area, nor does it serve many shorter distance trips. The GO Richmond Hill Corridor currently provides service to central York Region, but is not part of the GO Expansion program that is being implemented on some other GO Rail corridors. As a result, Metrolinx is also working to implement other rapid transit investments to address the needs of the Greater Toronto Region. The YNSE project extends rapid transit service to other municipalities in the Region and provides a connection between destinations in these municipalities with destinations in Toronto.
IBC, p. 22
An important issue here is that everybody in Richmond Hill does not want to travel to Union Station, and anyone bound for intermediate centres at North York, Eglinton or Bloor will have a faster trip just staying on the Yonge subway. However, the Richmond Hill line also intercepts major east-west routes notably on Steeles and Finch and could attract riders who would otherwise go to the core via Line 1.
Another important selling point for the subway extension is that if you work or live near it, you can travel for a TTC fare across the 905/416 boundary. The fare boundary skews the political debate in favour of the subway.
The dual challenges here are the frequency of GO service (and the extra trip time needed to transfer) and the lack of an intergrated GO/TTC fare. The modelling conducted in the IBC assumes the existing 905+GO fare arrangements, but only a flat GO fare within Toronto and no free transfers to or from the TTC. Needless to say, this drives ridership to the existing TTC network rather than providing relief. (There was a similar problem with modelling SmartTrack and the Scarborough Subway where frequent service and full transfer privileges between ST and TTC were essential in attracting riding to that line with the subway sitting not far away.)
The ability of the Richmond Hill corridor to provide subway relief is key in another context: the Yonge subway will be full again within two decades.
The IBC makes an odd comment in evaluation of the extension’s effects on subway congestion:
Through ridership analysis, it has been determined that new ridership associated with the extension would have a small impact on Line 1 crowding, partly because the line is close to capacity. Preliminary analysis suggests that the extension is expected to increase crowding south of Bloor station by around 1% (assuming Ontario Line will also have been in service by 2041). Many of these impacts would not be felt on the YNSE but would impact downstream passengers north of Bloor-Yonge who would experience more crowded trains and delays in boarding than would occur without the extension.
IBC, p. 93
In other words, the extension will not make the subway much more crowded because the line will already be close to capacity in 2041. I asked Metrolinx about this, and they replied:
The extension won’t come online until the Ontario Line goes into service, which will significantly reduce crowding on Line 1.
The Yonge North Subway Extension is also one of four projects under the Subway Program that are designed to spread demand across the transit network as it expands.
Email from Scott Money, Metrolinx Media Relations, March 19, 2021
No, I’m sorry, that’s not what the IBC says. It is quite clear that Line 1 will be at capacity ten years after the Ontario Line, which is part of the demand model’s network, will open in about 2030. There may be “relief” at that point, but not ten years later. Spreading demand across the network will require even more investment including projects such as taking the Ontario Line north to at least Sheppard, improving service in the Richmond Hill GO corridor, and making GO within Toronto (at least) part of the “local” fare structure and transfer scheme.
The Importance of Development
Many aspects of the proposed line are tied to the stimulus this can bring to development north and south of Highway 407. This shows up in various ways.
Option 3 moves the subway structure hard against the rail corridor. The “High Tech” station together with the structure of “Bridge Station” place several station entrances in locations to maximize short walking connections to the subway while leaving land west of the rail corridor open for development. Here are two views of how the alignment and stations work.
The first is a direct overhead satellite view. The area is challenging for pedestrians because of the rail corridor and highway nature of various roads. The prevalence of parking lots is particularly troubling, although redevelopment could replace or incorporate them. The question here will be whether development will occur in a way that is pedestrian friendly, and how well (or not) it will pull in adjacent areas. There is a large bus interchange at Bridge Station, but this is isolated by the highways.
The station will feature significant bus facilities to serve Regional GO Bus Routes, and local York Region Transit routes. An advantage of the Bridge station location is the opportunity to integrate the frequent VIVA BRT routes into the terminal design, optimizing the connection between higher order transit modes. The Bridge concept puts not only the subway at the connection point of the two development areas, but it puts the full transit hub at the same location. Residents on both sides of the highway corridor have access to local and regional buses serving York Region and the wider Greater Toronto Area.
IBC: P. 37
A key point here is that there have to be residents on either side of the highway corridor to take advantage of this access.
The description of High Tech Station is even more breathless in its hopes for development.
A second station would recognize the vision of the provincially designated Urban Growth Centre as having a truly regional impact on the Greater Toronto Area. It would put platform access for new residents in Richmond Hill Centre within a highly desirable 5-minute walk. For employers and their employees, it would replicate similar transit supportive conditions seen in Downtown, Midtown and North York Centre where office complexes have a quick direct connection with the subway. Municipal planning staff have highlighted that this type of access is attractive to developers, employers and future employees.
IBC: P. 38
A distinction about the “transit supportive conditions” further south is that there was already a city there before these nodes developed. It is not just a subway station or two that makes a site attractive, but being in the middle of a dense city. York Region has more aggressive assumptions about commercial development in this area than Metrolinx used in its projections.

This view is from the south showing the subway heading east from Yonge Street to the rail corridor and heading north.

Another view of the station areas appears in walking distance profiles for the pair of stations. Bridge Station makes a large area south of Highway 407 accessible, but this land is now either vacant or occupied by industrial uses. Will it fill with the type of high density Metrolinx dreams of for stations, or as a continuation of the low-rise built form further south? There are no walkable neighbourhood services, and the site shares with so many GO stations the problem of being in the middle of nowhere.
Take a walk around the “neighbourhood” south of the 407 with Google Street View. This wasteland is an “Urban Growth Centre” that becomes a lot more valuable now that it will have a subway station “bridging” the otherwise impenetrable 407. There is already a sign on one of the fences advertising an application for a plan of subdivision. The subway will not arrive for a decade, and by the time it does, this will probably be more low-rise suburban housing, not the “transit oriented development” Metrolinx touts.
It is quite clear that Option 3 is preferred because it provides both a development node and a regional bus terminal. How much benefit this is beyond the immediate area is another matter. “Walkability” after all requires not just a path and a time contour, but a “here” and “there” to make the walk worthwhile particularly in poor weather.
At the risk of sounding like a hopelessly narcissistic “downtowner”, I am not convinced that this station pair will create a “downtown Richmond Hill” as opposed to a free-standing, wanna-be node whose primary attraction will be a subway on which anyone there can escape to somewhere else. I cannot help thinking of Scarborough Town Centre whose location was dictated by a developer’s land holdings, and which took decades after the SRT’s opening to become much more than a shopping mall in the middle of a parking lot.

The next figure shows the walking distance profile for the original Option 1 alignment with stations at Langstaff and Richmond Hill Centre. Because the stations are further apart, the walking area stretches over a wider area, although those paths that would require crossing major roads are unlikely to be attractive. This arrangement also leaves the GO station remote from the subway and provides poor connectivity with bus services on the 407.

The degree to which neighbourhood stations serve little function beyond their immediate vicinity is illustrated in this discussion of Royal Orchard Station.
Royal Orchard station is positioned to break up what would be a significant gap of between 2.5 and 3.5km between Clark Station and Langstaff/Bridge Station. The analysis indicate that Royal Orchard Station will serve walk-in customers accessing the subway during peak hours. Passengers accessing the subway by bus will have the option to get on the subway at other stations. The 800m catchment area of this station would only have a minimal overlap with the Langstaff Station in Option 1. If a Royal Orchard Station was added, almost all the people and jobs in this area would be able to walk to the subway at an earlier station; and therefore, they would save time on their trips to Toronto. In Option 1, this station would benefit about 70% of people and jobs that are outside of the overlap with the catchment area of Langstaff Station.
IBC: P. 95
Why Option 3?
I asked Metrolinx why Option 3 was chosen even though it has the lowest projected demand. They replied:
This option has potential to provide the most number of stations within the $5.6 billion funding envelope. In order for Option 1 or Option 2 to be delivered within that funding envelope, the final project would be limited to three stations. A route that goes to ground level, aligning with the existing CN rail corridor, gives the flexibility needed to include a fourth station.
It is important to recognize that there are a wider range of factors that are considered as part of the final decision-making process. The Metrolinx business case is just one of several factors that is used in making a final decision.
Our approach in preparing business cases is to err on the side of caution, so this analysis represents a purposefully modest baseline that we will aim to improve over time.
Extending subway service through Vaughan, Markham and Richmond Hill will bring a world-class level of convenience and a better quality of life to the communities it serves. It will provide faster, easier access to downtown Toronto, York Region and all points in between.
We know that higher-order transit like this is transformative in so many ways. The Yonge North Subway Extension will expand travel options along York Region’s VIVA bus rapid transit lines and provide more Line 1 subway riders with a seamless journey. These benefits will also provide better access to jobs and offset traffic congestion as drivers get out from behind the wheel in favour of using the subway.
Any assessment presented in a business case represents our best understanding of a project at a given point in time, and it can change throughout a project’s lifecycle based on external factors and a deeper understanding of the challenges and opportunities.
We use the data from our business cases to ensure we make decisions that maximize benefits and control costs throughout the full course of a project. We update the business case at key stages to ensure these benefits are realized.
Email from Scott Money, Metrolinx Media Relations, March 19, 2021
The “faster, easier access to downtown Toronto” is likely most important to people living in Richmond Hill especially in the developing area along Yonge Street north of the subway terminal. This is well outside the walkable territory of the stations, and they will depend on buses to connect with the subway. Whether commercial buildings sprout here is another matter. They would be essential for counter-peak traffic, but the location is relatively isolated.
Forecasts envision that these communities might grow to provide homes for more than 64,000 residents and might offer employment to more than 36,000 employees. As important as these raw numbers are, equally important is the shared vision for new urbanized core in the centre of the Greater Toronto Area.
…
Through the conceptual design development process, an opportunity to “bridge” the two communities with transit was contemplated. A common subway station facility could stitch together Richmond Hill Centre and Langstaff Gateway and optimizes transit service to these important destinations.
IBC: P. 37
The operative word here is “might”. The projected population density map shows where York Region expects development to occur relative to the stations.

The projection of jobs near the rapid transit stations echoes the pattern of other comparisons between the options with Option 3 performing lower than Options 1 and 2.

There is a lot of employment along the highway corridor, but it lies well away from the subway stations and will depend on connecting bus services. For many who work there, it is not clear that the subway will be much use at all depending on their home locations. Metrolinx planners fail to acknowledge that transit riders do not travel the same way as motorists, and the concept of “nearby” has much more to do with connecting transit service and short convenient walks than physical distance from origin to destination.
The vision for the Richmond Hill/Langstaff Gateway Urban Growth Centre is that these two parts of the UGC will become vibrant mixed-use communities with significant employment opportunities. This IBC acknowledges the importance of supporting this vision and ensuring that it is supported by the transit investment.
Areas with high levels of employment density near the YNSE are also highlighted on the map. Employment centres at Leslie and Highway 7 and Highway 404 and Steeles are evident on the map and are located just 4km and 6km east of new YNSE subway stations. The Promenade Mall located just 2km west of the Yonge Street corridor also shows higher employment densities.
New employment along and in proximity to the corridor has the potential to take advantage of the capacity that is available on the non-peak direction.
IBC: P. 64
Of particular note in this map is the employment concentration around the junction of highways 7 and 404. This is an established node that competes with Richmond Hill Centre and will continue to depend greatly on auto access. It is ironic that the rail scheme that became SmartTrack aimed to somehow deliver workers to this area from the GO Stouffville corridor which is as far east of the 7/404 interchange as Yonge Street and the proposed subway is to the west.

Service Design, Capacity and Fleet
The planned peak service on Line 1 and its extension will be:
- From Finch Station southward: every 105 seconds (34.3 trains/hour)
- Between Richmond Hill and Finch: every 210 seconds (17.1 trains/hour)
- (Pre-pandemic service operated every 141 seconds, or 25.5 trains/hour)
With a train capacity for planning purposes of 1,100, this translates to almost 19k passengers per hour north of Finch Station.
In the original plans for the YNSE, the TTC claimed a possible headway of 90 seconds (40 trains/hour). This cannot be achieved because of various constraints including terminal geometry, turnaround times and station capacities. That 90 second fantasy was one reason the TTC formerly downplayed the need for the Relief Line claiming that they could substantially increase service on the Yonge line. “Why would you build a new line when you can carry the demand on the line you already have” was how a former Chief General Manager put it to me.
The pre-pandemic schedule for Line 1 required 61 AM peak and 63 PM peak trains plus gap trains. There will be some reduction in these numbers when Automatic Train Control (ATC) is implemented over the full line. Moving to a 105 second headway requires about one third more trains, and so the base part of Line 1 will need about 20 more trains plus spares, less whatever is saved from ATC. This is not part of the extension’s project budget and is an unfunded item in TTC’s capital plans.
Travel time on the extension is about 12 minutes each way, or 24 minutes in total. At a 210 second headway, this requires about 7 trains plus spares. The project budget includes 12 trains as well as a 12-train storage and light maintenance yard north of High Tech Station extending along the rail corridor to 16th Avenue.
The IBC notes that there is provision for further extension for “revenue or non-revenue purposes”. I have asked Metrolinx what this means, and it has long been rumoured that the TTC has its eye on property for a major new yard in that location. This is not part of any capital plan.
Station Costs
An important incentive for cost cutting is the ability to squeeze more stations into the capital budget. Below is a table for the three “neighbourhood” stations. In this table, the “benefits” are the imputed value of travel time and other savings (such as avoided auto trips) that could offset the cost of the station. However, there is a wide range of estimates for station costs ranging over a factor of about 2.5:1. On the basis of this evaluation, benefits that cannot be captured and monetized to pay for the stations are essential to making them “break even” as investments, and then only if the cost can be kept to the low end of the range.
I asked Metrolinx about this, and they replied:
With the completion of the Initial Business Case, we’ll now begin to confirm the benefits, financing, and delivery plans for procurement through the Preliminary Design Business Case (PDBC). The development of the PDBC is expected to take place over spring-summer 2021, with a target for fall 2021.
Email from Scott Money, Metrolinx Media Relations, March 19, 2021
This is all very well, but it raises a more general problem that “neighbourhood” stations may be on the verge of being unaffordable, and even that requires a belief in the notional value of benefits that accrue to riders and society as a whole, but which cannot be monetized to pay for infrastructure and operations. This also shows the amount of revenue that would be needed from joint development of station sites to make a significant dent in costs.

Capital and Operating Costs
There are two versions of the capital cost estimates: one is in the June 2020 IBC and the other in the Supplementary Analysis of March 2021.
Here is the original version:

And here is the revised one. Note that they are not on the same basis.

The reason that the Operating and Maintenance costs line is negative is that the savings from replaced bus service exceeds the O&M cost for the subway as shown in Table 29. This is an extremely unusual situation that applies only because Yonge Street is such a busy corridor.
Note that the “user impacts” constitute almost all of the “benefits”, and even so, the calculated Benefit-Cost Ratio (BCR) is less than one indicating that, under these assumptions and values, the investment does not “pay for itself” over a 70 year lifespan.
The capital costs for the three options in the original plan are shown below on an undiscounted basis (future costs such as replacement of subway cars and escalators when they wear out are not stated in 2020 dollars). In this version, the Infrastructure line consumed all of the $5.6 billion the province had allocated for it. There is a further $1.4 billion (net) bringing the total to $7 billion, and there is no indication of how this will be funded.
Moreover, without a comparison calculation of the $9 billion alleged cost before the provincial takeover, it is not clear exactly what the basis of comparison might be.
A major problem with Metrolinx cost estimates is that they mingle the short-term cost of construction with longer term costs, revenues and benefits. This masks the fact that any project of this scale is front-end loaded with construction costs whether this is masked under government borrowing or a long-term P3 financing arrangement.

The capital cost shown in the “refined Option 3” projection is lower than the numbers above, but again it is presented in a different way making a direct comparison difficult. The saving claimed in this update creates the headroom for a possible additional station.
Funding and Sharing the Costs
The IBC as well as government statements make clear that Ontario seeks contributions from other levels of government to this (among other) subway project.
The provincial government expects the YNSE to cost an estimated $5.6 billion in capital expenditure. The province is committed to ensuring all three parties (i.e. federal government, the province and municipalities) contribute to the funding of this essential transit infrastructure projects as well as seeking other third party funding for stations.
Through the Preliminary Agreement, the province and York Region will work closely and collaboratively to develop an approach to funding measures that works for all parties. Part of this work includes a comprehensive financial review and due diligence exercise to explore potential revenue raising measures, which will be subject to future decision-making. Such an exercise will be narrowly scoped, focusing specifically on the YNSE and the future benefits that the project is expected to generate.…
The TTC will be the operator of the YNSE and will incur the operating costs. The fare revenue identified can offset the operating costs, alongside York Region providing an operating contribution. Details of these arrangements remain to be resolved. This important piece of work will be facilitated by the impacted stakeholders.
IBC: P. 131
The nature of York Region’s contribution to the capital and operating costs remains to be seen. Toronto currently subsidizes at roughly $12 million annually the Vaughan extension’s operation north of Steeles (Pioneer Village Station). The model for the YNSE will see Toronto assume the operating cost in exchange for fare revenue, but the large majority of riders will already be paying TTC fares and they represent no net gain. Meanwhile the cost of carrying them through York Region and down to Finch Station will come off of the Region’s books.
I asked if Ontario had specific contribution levels in mind. Metrolinx replied:
The 2019 provincial budget estimates capital costs for the Yonge North Subway Extension to be $5.6 billion.
Metrolinx and Infrastructure Ontario are moving the project forward under the Subway Program, which includes three other rapid transit expansions that will get the region moving — the Ontario Line, the Eglinton Crosstown West Extension, and the Scarborough Subway Extension.
The provincial government has committed $11.2 billion toward the Subways Program, as a whole.
York Region has pledged to contribute proportional funding to the capital construction costs of the project through a preliminary agreement with the provincial government. The final contribution from the region will be subject to further refinements to the project’s budget and scope.
The Government of Ontario is also seeking contributions from the federal government.
Email from Scott Money, Metrolinx Media Relations, March 19, 2021
With respect to any federal contribution, a major issue is that the recently announced federal program of $14.9 billion nationally over 8 years does not leave a lot of money on the table for the GTA. It is not clear whether any separate monies are or will be available outside of this allocation to pay for a federal share of Ontario’s four key projects. If Ontario expects to get 40 per cent of the YNSE’s cost from the feds, this would take $2.24 billion out of the allocation.
A large chunk of that money has been proposed as support for electrification and the replacement of diesel buses with battery electric vehicles. It might be argued that a subway extension that replaces thousands of bus trips would accomplish the same thing, but (a) that ignores the energy and carbon effects of subway construction and (b) is probably not what those looking forward to cleaner bus service had in mind.
Soft Benefits
Metrolinx cost analyses trades off capital and operating costs against various benefits including:
- the imputed value of travel time saving
- reduced vehicle operating expenses
- reduced congestion
- reduced pollution and health effects
Based on a 2020 review of approximately 70 business case options, it is estimated that travel time savings captures approximately 60 percent of overall benefits.
IBC: P. 146
This is a telling statement. The majority of the benefit from various transit projects appears in the travel time savings, a value that cannot be monetized nor can it be applied to offset real capital and operating spending. Moreover, for a net new resident of the area, there is no “before” expense to be saved, only an “after move in” expense to be avoided.
Transit building also makes land more valuable, but none of this is captured in the model either through value uplift capture (a tax on capital gain) or through a tax on the higher revenue a property can generate thanks to a nearby public investment. Municipalities are quick to point out that higher taxes from new development go to pay for basic services needed by new residents, workers and employers. They are not just sitting on the table waiting to finance transit projects.
There is some offset from Development Charges, but even these are under attack by the development industry and their friends at Queens Park. DCs can only be levied to cover the cost of infrastructure upgrades triggered by new builds, not on the portion of cost increases related to providing better service and faster rides to existing passengers. With the low proportion of net new riders, DCs will not apply to a sizeable chunk of the extension’s capital cost.
Reduced congestion is given a nominal value by Metrolinx, as are assumed reductions in pollution and the health effects of autos. There are two fundamental problems here:
- All roads now operate at or over capacity, and with the relatively light diversion of trips to transit, this will not change. Indeed, a massive shift would be required just to overcome latent demand for the 80 per cent of trips that will still not be on transit.
- If there is a large-scale shift to pollution free vehicles, the savings on that account will dwindle as the fleet mix changes from internal combustion to electric.
Metrolinx discounts future benefits for the 70 years after a line opens back to present value. This has the effect of “paying for” current capital expense with notional future savings discounted for inflationary effects. If the discount factor is adjusted, the value of those future savings can rise or fall, and in some cases move a proposal from a negative to a positive overall analysis. This is illustrated in Table 34 below.
If the “value of time” is allowed to inflate, this makes future reductions in trip duration more valuable in 2020 dollars and boosts the benefit-cost ratio. Similarly, if the rate of inflation in future costs is reduced, this lowers the cost side of the equation in 2020 dollars.
Ridership obviously can play a part by adding to future revenues. This assumes, of course, that a sustained growth in demand could be accommodated without triggering other costs such as the need for yet another north-south transit corridor.
Over 70 years, these numbers are at best a gaze into a crystal ball. They show what might be under a collection of assumptions. By contrast, try to imagine what projections might have looked like back in 1950 when the original Yonge Subway was under construction. Then think of the unanticipated economic history of the past seven decades.

Outstanding Questions
The following questions posed to Metrolinx in preparation of this article remain to be answered:
- If the budget only covered the infrastructure, where does funding for the remaining $1.4 billion (the difference between “Infrastructure” and the total for Option 3 in Table 37) come from?
- In the original design, the line was going to cross the Don River on a bridge, but now it will tunnel beneath the river (p 143). There is no cost or saving cited for this change. Why?
- The cost estimate is based on delivery under a P3 model (p. 15).
- Would this be a DBF model given that the extension is to an existing line that would be operated as part of the TTC network?
- How would delivery under a “traditional” model affect the estimate?
- Although there are station by station projections for usage, there is no comparative projection of the demand southbound or northbound from Finch Station after the extension opens. Are these numbers available?
- In Table 29 (p. 120), the O&M costs of the subway are roughly balanced by the savings in bus operations. This is a highly unusual situation by comparison to the TYSSE where there were substantial marginal annual costs once the subway opened, and I believe that there is a similar situation on the SSE. Are the costs for the replaced bus operation so high because of the combined capacity of service that is already feeding into the subway at Finch?
- A great deal of the saved bus cost will accrue to York Region, but the TTC will bear the full cost of the subway’s operation with only limited new revenue because few of the riders represent net new fares. In effect, the TTC will bear the cost of carrying riders north of Steeles that is now borne by York Region. How will Toronto be compensated for the difference between net new fare revenue and the full operating cost of the extension beyond Steeles Avenue?
- In Table 36 (discounted capital costs, p. 129), the cost of the subway fleet for option 3 is shown as slightly lower than the other options, but this is not reflected in Table 37 (undiscounted costs). Why?
- There is a reference to protection for extension northward for “revenue or non-revenue purposes” (p. 144). What are the non-revenue purposes?
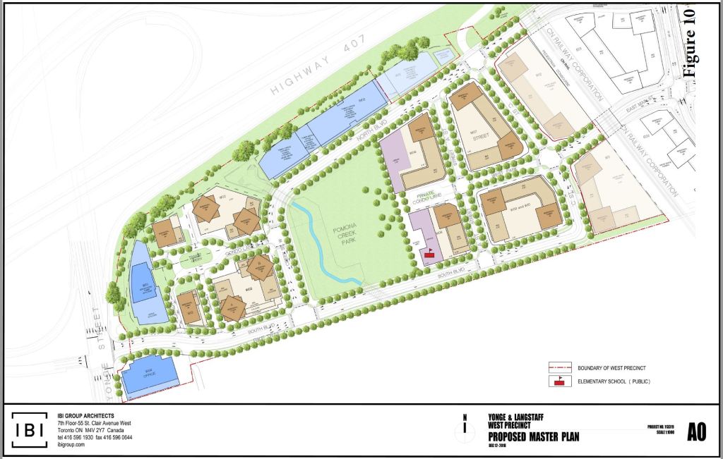
The Langstaff Gateway Plan
The area south of Highway 407 on either side of the GO corridor is the subject of an Official Plan Amendment 183 of the Town of Markham including a Secondary Plan which foresees a large residential and employment community there. The land is wedged between Holy Cross Cemetery on the south and Highway 407 on the north, and it is divided by the GO corridor which will now also hold the subway extension. Planning for the area began in 2008.
This is a large property about 1.4km wide and 0.3km deep, give or take because of its curving border. Overlaid on Downtown Toronto, it would be roughly equivalent to University-to-Sherbourne, Richmond-to-King. The Town has an aggressive plan for this site. The map from the Secondary Plan shows the intended land use and general layout.

An article on Urban Toronto describes this area and a proposed high-rise development in more detail. The illustration below is taken from that article.

This plan was based on the original subway alignment with a station at Yonge Street and Langstaff Road quite separate from the existing GO station and the proposed Bridge Station on the new subway alignment.
A pair of high-rise towers has already been proposed for the west end of this area, although the location was clearly influenced by what was then expected to be a subway entrance location.
Here is an aerial view of the land from the February 2019 report to Markham Council’s Development Services Committee [report and illustrations].

Here is the Precinct Plan for the area between Yonge Street and the GO Rail corridor. Two towers, 37 and 48 storeys, (“A” and “B” in the plan below, the southern pair of four shown at the west end of the site) were proposed to be close by the planned Langstaff Subway Station entrance on the east side of Yonge Street. This entrance does not exist in the updated Metrolinx plan with the subway shifted east into the GO corridor.

Some aspects of the original plan had changed by the time of the West Precinct Plan above. A notable omission is the cluster of buildings around a central square that would have bridged over the rail corridor. This proved to be technically infeasible, and would now be even more complex with two additional subway tracks widening the corridor.
Another notable absence is the “transit spine” which was to run through the development. The layout shown here would allow for a transit route to loop through the precinct, but the status of lands east of the corridor is another matter.
Either an underpass or overpass for any roads crossing the rail corridor pose problems of fitting the approach structures into what was originally a continuous plan for the entire area.
The original plan called for a connector road under the highways as well as a “transit concourse” to provide a protected walkway to the original Richmond Hill Centre Station from Langstaff. The space these would have occupied is now used by the Bridge Station.
A further consideration in this area is whether GO will only ever have a single platform (now east of the east track) or if this will be reconfigured for access to both tracks in anticipation of more frequent service. Vertical access to the combined station and platforms is constrained by the height of the overpasses and the need for vertical clearance for freight trains. Horizontal placement of tracks and platforms is constrained by the columns supporting the highways.
A pedestrian connection through the station will obviously be provided so that the bus terminal can be accessed from south of Highway 407, and this could replace the transit concourse, but the connector road might “fall off of the map” for lack of space.
There are oddities in the land use plan and staging for this area.
Although the intent is for this to be both a residential and employment area, the space for offices is all along the north side up against the highway, probably the least attractive place for residential buildings, and at Yonge Street linking to the now-absent subway station.
Moreover, the staging plan shows that the first phase of the plan would be residential with offices to follow, assuming there is a market for them, at a later date. This means that residents of whatever is built during phase 1 will necessarily work somewhere else, and any commercial activity (e.g. local shopping) will depend solely on residential customers. The area is landlocked by the highways and cemetery, and walkability is not its strong suit, particularly if only part of the plan is actually built.

The plan makes repeated reference to a “transit dependent” community.
From the Official Planning Amendment:
4.3.44.1 General Policies
a) The Langstaff Gateway Planning District is the area generally south of Highway 407, east of Yonge Street, west of Bayview Avenue and north of Holy Cross Cemetery.
The Langstaff Gateway Planning District is planned as a mixed use, intensive urban area incorporating housing, employment and retail facilities, recreational, cultural, institutional and civic buildings to serve as a portion of a designated Urban Growth Centre in the Greater Golden Horseshoe, and a Regional Centre in York Region. The Planning District will be a major activity centre which will be transit dependent as well [as] attractive and comfortable for pedestrians and cyclists and will integrate a high standard of urban design with existing natural features to create a complete community.
4.4.11 Transportation
d) To ensure that the components of the transportation systems required for development of any portion of the Langstaff Gateway are committed to be in place and operative prior to, or coincident with development.
e) To phase the implementation of the transportation system, including transit services, based on acceptable operational and financial criteria in accordance with the Langstaff Gateway Development Phasing Plan to be approved by Council and amended from time to time, in accordance with the provisions thereof.
…
k) To develop a parking strategy and plan to reduce reliance on single occupancy vehicles. The parking strategy should include parking management approaches that include provision of parking structures and on-street parking, maximum numbers of required parking spaces, and support delivery of high density, mixed use, transit dependent development.
8.1.2 Transit
a) In order to provide an attractive alternative to the private automobile and encourage greater use of active transportation and public transit, the form of development in the Langstaff Gateway must be transit dependent and transit facilities and services must be accessible to all potential residents and employees.
“Transit dependent” is hardly how one would design any neighbourhood, especially one well beyond the reach of frequent service and walkable neighbourhoods we are used to seeing in the old City of Toronto.
Although the completed community might have elements that will attract local, short trips, this is unlikely to eliminate the need for auto travel in the wider area. Transit will be provided not as a given but subject to “operational and financial criteria”. This does not bode well for a “transit dependent”.
The parking plan assumes that there will be a reduced need for single occupancy vehicles. How can this be achieved without good, reliable transit and connections to the wider region?
The original aim of the design, as its name implies, was to create a “gateway” that would be announced by towers at Yonge and Langstaff.
5.6 Transit Corridor and Nodes
An internal transit circulation system will be focused at the centre of the Langstaff Gateway community, creating a Transit Spine along the linear park system that links the East and West Transit Nodes portions of the Anchor Mobility Hub with the residential neighbourhoods and the Richmond Hill Centre to the north.
The West Transit Node will be located directly adjacent to the planned Langstaff/Longbridge Subway Station on the east side of Yonge Street. The East Transit Node is located near the existing GO Station, at the entrance to the Transit Concourse, which will connect Langstaff Gateway and Richmond Hill Centre. Clusters of high density residential and employment uses planned for these locations will serve as a visual gateway to Markham and as a regional landmark for this part of the Anchor Mobility Hub. The concentration of densities in the Transit Nodes within walking distance to the subway and the transit mobility hub will support transit ridership.
An important part of transit planning, at least on a theoretical basis, is that local employment is important both to reduce the need for long trips between bedroom communities and employment areas, and to generate bidirectional travel on the transit network. The aims for Langstaff Gateway are set out in the Secondary Plan.
These are noble goals, but there is no guarantee that offices will sprout just because they are in the Precinct Plan. Other would-be “centres” in Toronto have come nowhere near original plans for development, and residential uses have dominated.
6.1.3 General Employment Policies
b) Sufficient lands are designated with the Planning District to accommodate a mix of retail, office and institutional uses generating 15,000 employment opportunities.
c) Employment opportunities in the Langstaff Gateway are intended to contribute to an overall long term Region of York resident-to-employee ratio of 1:1 for the Richmond Hill/Langstaff Gateway Regional Centre. The minimum employment target for this Secondary Plan shall be based on a resident to employee ratio of 1:0.5.
Metrolinx has turned the Langstaff Gateway plan on its head by shifting the subway station east to the GO Corridor. This may well save on construction costs and make more sense with a consolidated regional transit hub, but it completely shifts the focus of the site away from Yonge Street.
Although this is intended to be a large development over many years, there are obvious questions about whether it will all be built, especially the office component, and whether the real attractions for residents lie east-west along the highways, notably further east in Markham. There is a parallel to the Sheppard Subway and surrounding developments which are attractive at least as much because of the nearby highway network the subway.
Is the true purpose of the subway to enable large scale residential development at its outlying stations for a market of downtown commuters? What does this imply for demand patterns to and from the area?
It is ironic that if all of the new residential density translated into peak direction subway riders, this would make the situation on Line 1 even more dire. That would be compounded if the “neighbourhood” stations between Langstaff and Steeles were restored and became development nodes in their own right.
An absolutely delicious examination.
I will read in detail later, must rush out now, only had a chance to skim through this, and I’ll delve into it later to digest it slowly, but two things immediately jumped off the page, and by ‘their’ own hand:
Steve addresses these statements, but of course, Metrolinx don’t answer to external critiques, no great wonder, as they can’t even answer their own claims.
The Bala Sub is far from a perfect answer to both the Yonge Extension and the Ontario Line. But it’s real, and it’s there. And for a province that claims to so concerned about finances, it’s well past time to make do with it, like we’re all doing right now.
I’d love to see the Don Valley given over to only recreation, but it ain’t gonna happen. As things stand, the Bala Sub is absolutely prime to double track, grade separate and electrify. And by sharing it with VIA, an even stronger case can be made to the Feds to share an even greater share of costs.
HFR might be in the doldrums right now as per promotion, but the need will be as great as ever in future years.
My apologies if Steve has gone into more detail later in this excellent piece. I’ll be savoring it later today.
LikeLike
Great unparalleled analysis (as usual). One minor correction: it’s Kirk Drive, not Kirk Street.
Steve: Thanks! I will fix that.
LikeLike
There seems to be a lot of talk by Metrolinx about cutting costs.
1) I wonder how much savings were shown in their studies using the cut-and-cover option. They even acknowledge that a major cost saver is reducing the excavations required. Could this have allowed all 3 supplemental stations to have been built? Much like for Eglinton West and Scarborough – this is where the real savings are.
2) It seems the options are comparing apples to oranges. Option 1 and 2 have curve radii of 1000m to 700m (+/-). Option 3 (and the final 3-S alignment) seems to have a +/-400m radius. If they are going tight radius, I think with 300-350m radius they should be able to make that “S” curve onto the CN alignment immediately north of the cemetery property – maybe nipping off the NW corner of the property. I foresee a lot of public backlash of tunneling under the subdivision. Much like Leslieville, it’s not worth the fight when other options exist.
Steve: The inconsistent application of cost-cutting principles by Metrolinx shows how much they are a politically-driven organization.
LikeLike
If the cost savings from shifting over to the CN Bala sub is that significant, Metrolinx should go in a completely different direction. Before commiting to build the NYSE, they need to do a new CBA for the Richmond Hill GO line.
If they double tracked and electrified the Go corridor, built the Bridge Centre station as an improved Langstaff stop, adjusted Oriole to better interchange with Leslie station on Line 4 and added a stop that linked to line 5 at Eglinton, would there be a need for the NYSE?
The Fed’s are prepared to pony up money to electrify buses, why not Diesel trains?
As even Metrolinx admits, the extension of Line 1 north will only add to congestion to southbound ridership. Shifting the ridership to the GO line diverts the long commuters – having stops at Line 4 and 5 give mid-distance commuters an outlet in the non-core areas.
It would be interesting to see a cost benefit analysis of the electric RH GO vs NYSE on a head to head basis. Is there anything like this out there? I know Metrolinx are reluctant to do much with the RH GO route due to the cost of floodproofing, but it should be cheaper to upgrade an existing GO line in comparison to building a brand new NYSE.
Steve: No there is not even an estimate of the cost of upgrading the RH line. Metrolinx has an appalling habit of “comparing” only alternatives within a chosen set of solutions, and does not look beyond this to see how other elements in a network, rather than a single line, might contribute to the whole. To be fair, this is not confined to Metrolinx. For years, any “Relief” line was seen as horribly expensive, but we never got an estimate of what this would offset in the cost (if it were even possible) of concentrating all demand on the Yonge line and Bloor-Yonge Station.
LikeLike
Wouldn’t cutting across a corner of Holy Cross Cemetery disturb the (Progressive) Conservative voters residing there? 😱
(Sorry, couldn’t resist.)
Steve: Possibly a series of ghosts could visit Doug Ford and encourage him to mend his ways, but I doubt it.
LikeLike
Maybe a chorus of:
They’re moving father’s grave to build a sewer.
They’re moving him, regardless of expense.
They’re shifting his remains
To put in five-inch drains
To irrigate some posh bloke’s residence.
(more verses on request)
Wasn’t there a attempt at savings on a previous subway project by either not finishing the stations or not buying rolling stock?
Steve: You may have noticed that the stations on the Spadina extension are rather plain at track level. All the fancy design went to the upper level.
When the TTC built Downsview (now called Sheppard West) Station, they actually stripped down the design so it would look good but not cost much. The Ford crew took one look at it and called it a waste. That’s the mentality we are dealing with.
LikeLike
Steve, how can the BAU (i.e. today’s) modal share of the AM Peak transit trips in the Yonge Corridor be so low, 14% to 22% ? I am struggling to understand how that’s physically possible.
The southbound Yonge subway gets fairly busy after Sheppard Stn. It is standing room only, and fair to assume the trains are ~ 40% full. Taking into account the 30k pphpd design capacity, that means ~ 12k riders per hour.
The “design capacity” of a general traffic lane is 1,800 car per hour: 3600 sec divided by the mandatory 2 sec interval between the cars. The car load factor is ~ 1.2. Yonge Street has 3 lanes each way, and therefore cannot handle more than 1,800 x 1.2 x 3 = ~ 6.5k per direction; that’s about half of the subway’s load.
Looks like Metrolinx has made some kind of mistake there, and that mistake works against their own goals, undermining the impact of the subway extension.
Or maybe the problem is in the definitions? If they are defining “Yonge corridor” as the set of parallel streets including Willowdale, Beecroft, even Bayview and Bathurst, rather than just Yonge, that would certainly increase their travel-by-car count. Or perhaps they are counting all trips along Yonge from Newmarket to Queens Quay; that would include long stretches totally unaffected by the planned extension, and obviously dilute the effect.
Am I missing something?
Steve: The area in question is north of Finch, indeed north of Steeles. There is a huge amount of travel in York Region that transit simply does not touch because the trips don’t lie along the subway corridor. Even many that do are not easily handled by the subway because only part of the trip is in “the corridor” with an access leg to/from other areas at either end. That’s why people drive if they can afford to.
There is a parallel here with the situation in Scarborough where a lot of travel will not be helped by the subway, but it’s at a higher level in York Region.
LikeLike
A fantastic analysis as always, Steve.
The placement of the options for the fourth station, Clark and Royal Orchard stations, seems questionable. Clark St is too close to Steeles Ave, and it is hardly an arterial, running only for two blocks between Dufferin and Yonge. Royal Orchard Blvd likewise is not an arterial road and only runs between Yonge and Bayview. If we are going to drop stations, we should have a station halfway between Clark and Royal Orchard to fill in that gap. An ideal location should be between John Street and Centre Street.
John Street, Regional Road 71, is an arterial east of Yonge that carries the YRT 2 Milliken route (and its branch YRT 14 14th Ave) from as far east as Markham Road and Don Cousens Pkwy through southern Markham to Finch Station. Centre Street is the western half of Regional Road 71, connecting Yonge to Highway 7 via Promenade Mall. It makes so much more sense to put the subway station where the arterial bus routes intersect with Yonge, and the YRT could really use the opportunity to disentangle its bus routes. The YRT bus routes in Thornhill and Markham are a circuitous spaghetti mess of routes and long overdue for straightening out into a grid network.
There is a lot of latent transit ridership in southern Markham, Milliken, that just don’t take transit because the bus service is truly the worst. Any existing transit users migrate to Steeles to take the 53 Steeles East or just drive to Finch, Scarborough Town, or Fairview Mall, effectively avoiding the YRT like the plague. Then, YRT proceeds to further slash bus service in Milliken to fund their multibillion dollar VIVA busway projects, driving away any remaining riders. The YRT and Markham mayor love to use the excuse of fare integration with the TTC to justify why their ridership is low, but the real reason is their own service cuts.
Perhaps, I am super cynical but the choice to put two stations in the middle of nothing only meters apart in affluent Richmond Hill seems very suspect while the poorer Thornhill and connection to Milliken could be completely skipped. I smell political interference was involved in that decision. The High Tech station seems completely redundant and a waste of money. If this subway gets built, it will be a complete flop north of Steeles unless YRT fixes its bus routes and significantly improves local bus services in Milliken and Thornhill. The rich folks in Richmond Hill are never going to give up their SUVs, but will love seeing their property values skyrocket.
LikeLike
So we have endless and agonizing discussion about the cost vs. aesthetic benefit of public art and architectural design of subway stations, but not about the view of the Don Valley for passengers? These are, of course, matters of taste and opinion. But it is my opinion that the view of the Don Valley for subway passengers going over the Prince Edward Viaduct on the Bloor line is worth more than any station art or design. Highlights include the trees changing colours in autumn. But at any time of the year, that sudden bursting out from the tunnel onto the bridge above a splendid view of the Don Valley really does it for me.
So it is better to have more stations, even if fewer people are using them? Welcome to government logic. Looks like the phrase, “Good enough for government work” also applies to logical reasoning.
Steve: A similarly convoluted argument was advanced for the Eglinton West extension where the loss of stations cuts into ridership, but the faster travel time benefits those who remain.
Who on earth would walk 1.2 km when they could ride a bicycle? Not to mention that many people are older or have a problem that makes it difficult to walk 1.2 km but that can ride just fine. Why do I now have the feeling that a multi-billion dollar project is about to be screwed up by failing to spend a minute fraction of that on bike parking and protected lanes for people to actually get to the station. And where is the map of “Ride time to station entrance… 5 km”? Subways are only effective with adequate feeder routes.
Steve: Metrolinx does not do feeders. They only build things and leave any local services to the municipality. A similar problem applies to VIVA which you come to below. For MEtrolinx (and I suspect for York Region), it’s a construction project. Actually running service is a municipal affair. Oh, but we give them gas tax, don’t we? Well, yes, but most cities use this to buy buses, not to run them.
Huh? So people living near Langstaff are willing to walk 1.2 km but people living near Royal Orchard are only willing to walk 800 m? See above comment re: Government logic.
Perhaps their definition of “frequent” is somewhat different than mine. Because I would describe the York Region BRT headways with words that range from “lousy” to “crappy” to “complete joke.” To be effective, subways require adequate feeder routes. York Region’s BRT does not currently fall into that category.
Is there some technical reason why this proposed BRT could not be upgraded to LRT to handle the projected demand? It would solve a lot of problems to have Option 2 from 2007 with LRT. In other words, extend the subway north to Steeles with LRT further north. The cost would fall dramatically and we could have multiple stations. Also, I note that Metrolinx is planning a LRT/BRT line north from Richmond Hill/Langstaff station. This is described as one of their “Projects in Delivery” with project 18 on page 17 (page 21 of the PDF file) in their 2041 plan.
Given the costs and level of demand, it makes sense to have the transition from subway to LRT at Steeles rather than Langstaff.
Steve: The term “BRT/LRT” is used in the legend for several lines, but the project list on the map calls this the “Yonge South BRT”. I do not expect to see LRT in York Region, even though VIVA could have been very different planned on that basis.
LikeLike
As I mentioned on Twitter, I am very curious about how much this new route will impinge on CN property and how much public money will be shovelled in their direction for their assent.
As often with Metrolinx project assessment, one wonders if their enthusiasm for one mode or another shifts with their mandate to build same, given that they used to have substantial plans for the Richmond Hill line in their RER business case, including separating Doncaster Diamond (removing one source of conflict with CN).
LikeLike
Thanks Steve and commenters.
It’s another Suspect Subway Extension, where it’s almost as if there’s a malign intent to blow the billions for lousy transit, compared to other options. If we were charging the cars/drivers more appropriately, it might be ‘what’s a billion?’ as Cnclr Thompson once opined. But we’re dominated by the carservatives, and it’s showing up again as nope, we seem quite oblivious to rational analysis of a seems-good option of upgrading/using the Richmond Hill GO line for regional travel, as a concept eh?
The EA/IBCs tend to be a sham for ignoring options, and also environmental impacts of all the materials usages, let alone opportunity costs.
Back only 25 years ago, the last Metro OP indicated that GO was supposed to be doing an EA to use/re-use that spur line now a Rail Trail to connect to near Eglinton/Don Mills, and this still remains a very logical option, and likely far better value for a lesser cost, if there’s any desire to trim another few billion, which could include – if we were to move quickly on a triage relief – the rather costly amendings of Bloor/Yonge by doing surface-oriented transit on existing RoW within the Don Valley, as a starting point, though we’d still need to do some rebuilding/construct of tunnel/bridge or three.
Steve: “Logical” depends on how well you know that rail trail. It was a single track connection that runs through a residential neighbourhood and crosses Lawrence at grade just east of Leslie. If the money is expended on double tracking the Bala sub, there is no need to get into the complexities of using the rail trail, the CPR through Leaside and the Don Branch.
Now would actually be a smarter time to have a pause and re-think of most of the transit works that are priority projects as GO ridership is down c 90% is it? and TTC is also badly down and we really should start having a Vehicle Registration Tax of c. $500 each, right?
It seems key to me to think of what’s possible in the short to medium term as I have a strong suspicion ‘we’ haven’t really factored in what happens when Line 5 opens and perhaps draws in new riders, and how many of them will be transferring, or trying to, at Yonge? We really do need to think of what’s possible quickly for N/S relief especially, regardless of how many of the well-heeled and often ‘carservative’ voters/votorists will be ‘compromised’ by better transit.
Steve: There is another capacity ‘gotcha’ on Line 1. The TTC owns 76 TR trainsets. Allowing for 20% spares, that means a service of 63 trains which is actually two fewer than the peak pre-pandemic scheduled level of 65. The headroom there is allowed because 4 AM and 2 PM trains are “gap trains” that, in a pinch, could be cancelled.
Although the TTC will “get back” a few trains thanks to ATC making for shorter running times, they have almost no capacity to add service to Line 1 to handle added demand, and no trains are on order.
The March 28, 2021 schedules cut peak round trip time by 7 minutes. At the pre-pandemic 140 second headway, that’s 3 trains bringing their requirement to 60, and we can expect a saving of, maybe, two more when ATC goes all the way to Finch. If they went from a 58 train service to 63, that would be an improvement of 8.6% which is not exactly breathtaking. Headways could be reduced from 120 to about 110 seconds.
LikeLike
I dug up this 2007 presentation just to remind myself of what was proposed back then. (there is likely better, but it’s the first I found). Like every proposal, parts of 2007 were better, while parts of 2021 might be better, and some “better” was not even considered.
In 2007, they said that cut-and-cover would be used at cross-overs, stations, and the bridge. If you add that up, that it’s about 25% of the length. Does it not make sense just to make the depth of tunnel less, have a bit of disruption along the entire length – measured in months – and then reduce the disruption at the more critical intersections by years because of the shallower stations. Also allows for concurrent construction to speeds thing up and reduce the overall chaos. I think the bridge made no sense in a TBM model, but makes immense sense in a cut-and-cover model.
Steve: The 2007 presentation is among the documents linked from my recently added reference page of info on the YNSE.
Yes, the choice of deep bore tunnel triggers so many other issues including staging and station design, but it’s a hard sell once an area is built up.
LikeLike
Thanks Steve – all that makes perfect sense now.
I can even understand how the extension can add 5k new transit trips per a peak hour, but only marginally improve the transit modal share. New highrises around Yonge & Hwy 7 will have lots of new residents, and naturally some of them will be using the subway; that’s a net addition to transit usage. But other new residents need to travel in other directions, and that’s a net addition to car usage. So, the ratio doesn’t change as much as one could hope for.
LikeLike
The current track in the Don Valley south of Eglinton is single track and subject to storm runoff flooding. How feasible is it to double track this section and mitigate the flooding?
Steve: Metrolinx has already looked at the work required to raise the level of the track above flood level, but has never published it. For starters, you may know that as the Bala Sub leaves the rail corridor east of Union, it descends to run between Bayview and the Don River. This is a common location for flooding as is the section further north near Pottery Road (the site of the famously marooned GO train some years ago).
These are common problem areas that could have been addressed and this past year would have been a great time to do this work with ridership all but vanished and the line could have been shut down with no effect.
However, the big push is for the subway and anything that might divert attention from it is simply ignored.
LikeLike
With that spur line/rail trail, it’s got some width, so as another less-well-used linear asset most other places would think of re-use/use. This should include undergrounding, especially closer to Eglinton where vertical differences are greater.
One point forgotten about in first comment: there’s a whole range of anti-flood measures we aren’t doing too well at including in the ‘plans’. Underway now, not sure if there’s an easy/good link about it, is a larger tunnel flood diversion project, the entry portal now occupying a former playing field visible from the Viaduct/subway. It’s a few billion worth of work; why not leverage that a bit?
Steve: That portal is directly across the valley from where I live. It is a new major diversion tunnel to replace the Coxwell tunnel that failed a few years ago. There is a city report including a map here (map on p 11).
Also, Susan Bonnell’s book on the Don suggests fully 70% of the flood surge in the Don is from hard surfaces, which often means car surface. It’s one of those subsidies to cars that adds up, and if we had a drainage fee/tax for hard surfaces and the roads were also put in to that equation, heck, maybe there’s not be such a set of problems, or it would be minimal, though with climate issues, yes, may be Trouble, but then let’s make sure that the transit we do is actually worthwhile transit, and it includes the full impacts of concrete etc. And there should be an opportunity cost assessment too: the SSE – if built, and if ridership grew at forecast, the Star figured it would be at a cost of $1.450,000 for each new rider – and I wonder what this other Suspect Subway Extension will cost per new rider hmm? Sure wish there were parties in power that respected taxpayers, right?
LikeLike
I wonder if Metrolinx will decide on which neighbourhood station to build depending on which one has the most developer interest (read = $$$).
Realistically, they should plan to build bare station boxes at some or even all of the “unchosen” locations, to allow for future construction if future circumstances permit. As Singapore does on their MRT (e.g. Hume & Bukit Brown stations), and London nearly did at Woolwich Crossrail – before the local Council and a private developer (Berkeley Homes) stumped up the cash to fit out and open the station.
Steve: For a deep bore dual tunnel construction, building a bare box for a station is almost as expensive and disruptive as building the station.
LikeLike
As part of the announcement, there was also pressure from the Ford Cons on the federal level. So given how dense/obdurate they are, the better hope for squeezing the billions for real value may well exist more at the federal level, though we have a degree of tilt easily shown in a few projects already from Liberal-led governments. In particular, why isn’t there comparison with expanding GO, and nope, can’t trust Metrolinx to do that analyses, and perhaps the increase in Mr. Verster’s salary alone might be enough to get a decent guesstimate of costs, though likely not, as it really can be complicated, and well worth a million or two or three to save a billion or two or three even. We do have a need to somehow provide sub-regional, non-Union/core services and shouldn’t degrade GO services, nor necessarily have milk runs by TTC, and how to get ourselves towards that sub-regional/faster-trip result?
Steve: As I mentioned in this and another article, the feds have already announced their funding package for the next eight years, and it certainly does not have room for the scale of spending Ford hopes to palm off on them. It is possible that there is money under other rocks, but if so, there will be calls from other cities to get additional funding too.
LikeLike
This is very exciting news. The tunneling for the Scarborough subway is beginning this year, Eglinton Crosstown is coming up next year, Finch West LRT is also under construction, SmartTrack, and now we have the Yonge subway extension and Ontario Line. Let me tell you, I was skeptical when Doug Ford came to power. We were told that he would cancel everything. Far from it. We have been proven wrong. I am glad. There has never been a better time to be in Ontario.
Steve: The Eglinton Crosstown is a project Doug Ford inherited after the tunnel had already been completed and station construction was underway. He probably would have cancelled Finch West given half a chance. SmartTrack is a shadow of what was originally promised and is, in any event, funded by Toronto, not Queen’s Park. The Yonge extension depends on contributions from other governments that may not materialize giving Ford an excuse to walk away from the project. I am waiting for some chunks to “fall off” of the Ontario Line when Metrolinx discovers that Ontario cannot afford it, but that will be a news story for another day. Meanwhile, in his own back yard in Etobicoke, he’s spending a bundle to put what should be a surface LRT line underground, and I won’t even talk about the waste in Scarborough.
It will be a better time to be in Ontario when that arrogant blowhard and his team, including cronies at Metrolinx, are dispatched to the outer darkness by voters.
LikeLike
Given that it is a major project, it is only natural to expect that other levels of government contribute as well but if Trudeau won’t contribute, then the voters will take care of him. In any event, it would be good if the Yonge subway extension is cancelled. There is not enough ridership to justify subway service north of Finch. There should be an at grade LRT running from Finch to Richmond Hill. There is just not enough density to justify a subway north of Finch.
Steve: There is a lot of ridership north of Finch, hence the concern about overloading the subway further south. As for Trudeau and Ford, there is a basic problem on both sides. Provincially, Ford wants a blank cheque for 40% of any project he cooks up including wasteful spending in Scarborough and on Eglinton West. Federally, the government doesn’t want to pick favourite projects (most of the time) and announces a block program of future tranfers that do not come close to satisfying the wish list. Moreover, the feds confuse things by shifting funding from project-specific grants to block funding crowding out additions. In both cases a lot of finger-pointing ensues.
LikeLike
The latter is especially true; though would that we could re-allocate the subsidies to oil and gas industries to transit as part of the climate solution.
Meanwhile, perhaps some who are more familiar with the politricks up in the Richmond Hill area would know by what degree Liberal (and NDP of course) candidates/parties are gung-ho for this Extension, and how much pronouncement/advocacy is/has been done for it. With some of the background design work done for this, the federal level did kick in some $$ – that was part of the ‘why’ the TTC got involved in the process – a low to no-cost, apart from $crewing the core riders (again). And really, the federal level is trying to get away with rubber-stamping what ‘planning’ the Council/Clowncil approves,even though there was a direct decision 23-19 here on Dec. 13/16 which for me was clearly saying we will avoid best practices/rationality. We really do need to have more neutral planning not scheming that is well-resourced and removed from the politricks, so that the Websters of the transit world can speak their minds, about relative value/needs – and not be fired.
LikeLike
Don’t forget that Doug Ford actually did cancel the Hamilton LRT after tens of millions of dollars was spent designing it and acquiring property for it. And after hundreds of millions of dollars of private sector money was spent on developing properties based upon the assumption that the provincial government would actually keep its promises and the LRT would be built.
Not too many premiers can brag about messing up the future of an entire city the size of Hamilton. Doug Ford is one of them.
LikeLike
Yes but it is not enough to justify a subway in Richmond Hill. Ridership studies that the all 3 stations in Scarborough will have many times more ridership than every station in York Region but still you support the subway to Richmond Hill and are bitterly opposed to the Scarborough subway. The demand in Richmond Hill can be better met by LRT. Besides, Yonge St is wide enough from Finch to Major Mackenzie to accomodate LRT. Anyway, regardless of your personal preferences, Scarborough is getting an underground subway opening no later than in 8 years time. Ford might be trying to earn votes by his transit building spree but regardless of his motivation, the fact remains that Ford has done more in 2.5 years than the Liberals did in 15 years at least in terms of building transit.
Steve: You really don’t understand how to look at ridership numbers. It is not the demand at each station north of Finch but the cumulative demand. And I never said that I support the subway to Richmond Hill, just that LRT toward the south end would be a stretch because of that accumulated demand. I have argued for the GO corridor to be upgraded to take some of the demand off of the subway (the long haul traffic to downtown) leaving more room for shorter trips.
In Scarborough, the projected cumulative demand arriving at Kennedy is well below the demand at Finch. Moreover, the Scarborough LRT network as originally designed would have had three subway feeders: the SLRT, the Eglinton East line, and the Sheppard line to Don Mills Station thereby splitting the demand rather than concentrating it.
LikeLike
I have big problems with the narrow tunnel vision of the Metrolinx cost/benefit analysis. The true benefit of transit is that it allows the creation of liveable, humane cities with a high quality of life for people. Just try to imagine what Toronto would be like today if the subway had not been built starting in 1954. Not the sort of city I want to live in.
Unless we want to change our immigration and refugee policies, the Toronto area is going to continue to have substantial population growth. The provincial government is projecting the population of the GTA to grow by 2.6 million people, or 36.7 percent to the year 2046.
With some rare exceptions, the GTA has no capacity for transportation by additional private automobiles. It is a fact of mathematics, specifically geometry, that only so many large metal boxes can be put upon a street. By the year 2046, 2.6 million more people are going to be moving by public transit or not at all. The reality of “not at all” means a congested hellscape of a city that I for one would find very unpleasant to live in.
In terms of cost/benefit analysis, there are really only three alternatives for the GTA:
1. Change our immigration and refugee policies to achieve zero population growth.
2. Watch our cities turn into unlivable, congested hellscapes where everyday living is a nightmare of stress and wasted time trying to get around.
3. Provide adequate public transportation for an additional 2.6 million people by 2046 in order to build a livable city that is pleasant for people to live in.
#3 works for me, and that is the true benefit of providing public transportation.
Steve: With one key caveat. Providing public transportation that goes where people need and want to travel, not just to a developer’s empty field.
LikeLike
Does “neighborhood station” mean a station without bus terminal? That is if only Steeles will have bus terminal then 53/60 can be cut back and 42/125 will continue going to Finch?
This should help with service reliability on the 60 as the left turn onto Steeles can take a long time at rush hour. It might even make sense to have a through Steeles Express to York University from Scarborough.
Has Metrolinx/TTC figured out exactly where the terminal at Steeles will go? There are quite a few proposals for rezoning/redevelopment of strip malls along north side of Steeles from Yonge to almost Hilda. I haven’t seen any proposals for redevelopment of anything on the south side of Steeles (maybe they can stuff it into Centerpoint parking lot on southwest corner). Could the bus terminal for TTC be built on the north side?
Steve: The IBC makes reference to an off-street loop within an “emerging” development. The original scheme was a large underground loop, but his has been dropped.
LikeLike
All the new stations on the Yonge North Subway extension (and the “Ontario” Line for that matter) should have a redundant elevator, that can be used when the other elevator is out-of-service. How can the stations be “accessible” if they are out-of-service for maintenance or mischief.
The bad news is that extra elevators would increase the overall cost of the project(s).
Steve: ACAT has been pushing for this at the TTC, but they are not exactly impressed with Metrolinx’ responsiveness. You may have noticed a phrase in a recent City Council motion about “meaningful” consultation with ACAT.
LikeLike
This is something that I have observed over and over again in Toronto. Even the busiest of transportation routes will have decreasing demand as we move out from the central core. So the question to ask is this:
The same question can be asked the other way around:
For example, in the City of Hamilton, whose LRT was cancelled by Doug Ford.
One would think that this would be a technical issue that is resolved by looking at the cost and capacity of various transit technologies and comparing that to projected future demand. Or, in the case of Hamilton, actual present demand. Pre-pandemic, of course. Alas, here in Ontario the provincial government keeps making these decisions based upon pure power politics (and a heaping helping of corruption) utterly divorced from the realities of costs, capacity and demand.
A useful document is this Metrolinx backgrounder, which lays out the costs and capacities of different transportation technologies.
As we see on page 7 of this document, the capacity of subways is up to 40,000 passengers per hour (peak hour, peak direction). However, that capacity is very expensive. Richmond Hill is currently at $5.6 billion for the 8 kilometer extension, or $700 million per km.
On the other hand, as we see on page 10, LRT has a lower capacity of only 25,000 passengers per hour (peak hour, peak direction). However, surface LRT is much cheaper at only $35 – 40 million per km. This document dates from 2008. Since annual inflation has been running at about 2% since then, this number should be increased by about a quarter. Resulting in $45 – 50 million per km. Note how much cheaper this is than the $700 million per km for subway.
Steve: Both of those figures can be challenged. They depend on extremely short headways that cannot necessarily be achieved, as well as higher assumed average loadings than the TTC is comfortable planning for. For example, the planning capacity of a TR train is 1,100. On a 105 second headway, achievable only with ATC and with really well managed terminal operations (or a split terminal), we get about 37.7k passengers/hour.
For “LRT”, 25k is really only achieved at the very upper end of the scale and realistic projections are much lower unless the operation is on a totally segregated right-of-way. If we take an LRV at a practical capacity of 150 (slightly more than the TTC’s planning number), one would need 167 cars/hour or a 22 second headway, equivalently a one minute headway of three-car trains.
For “LRT” as Metrolinx likes to define it (SRT/Skytrain technology), 25k/hour on a 90 second headway (which they claim is the upper level for the OL) requires a capacity of 625 per train, roughly equivalent to a 4-car TR train on Line 4 Sheppard. Let’s just say that I regard this as a tad aggressive unless they plan a packing density higher than riders are comfortable with.
Now let’s look at demand. The highest forecasted demand is provided by Option 1 in Table 9 in Steve’s excellent article. For the AM peak hour, this is:
Note that this is uncomfortably close to the LRT maximum of 25,000. So a subway extension is justified. The question is, how far? It is two km from Finch to Steeles. This is only a quarter of the 8 km to RHC, but look how well over a third of the entire demand (7,400) is at Cummer and Steeles. The remaining demand north of Steeles is 13,500 passengers, well within the capacity of LRT. This leads to the conclusion that the rational policy is to extend the subway to Steeles and then have LRT northwards into York Region.
In other words, the rational policy is something along the lines of Option 2A from the Metrolinx Benefits Case Analysis update in 2013. Which also includes improving Richmond Hill GO service for those travelling all the way downtown.
So, what has changed since 2013? Has there been a radical change in growth projections or transportation demand projections? No. In geography or demographics? No. The only thing that changed is politics with the election of Doug Ford. So that instead of a rational policy we now have an irrational one.
Steve: Not to mention the politics of Richmond Hill which will accept nothing less than a subway as their just due.
LikeLike
Pre-covid the Yonge subway was over capacity south of Bloor and definitely over-crowded Bloor to Sheppard.
There are plenty of Yonge subway riders who hate it.
Was it last year that the subway had morning rush hour failure and Toronto was disrupted for the day? It is obvious the Mayor of Richmond Hill is unaware that the Yonge subway connection is not a great idea.
There is a thought that the Ontario Line will relieve the load of the Yonge Subway. The original relief line was defined 20 years ago where the residents of Overlea Blvd were blamed for the congestion. What has happened in those 20 years are the apartment complexes Sheppard to Finch, Eglinton and St. Clair. There is no reason to believe the Ontario Line can address the passenger load on the Yonge Subway.
Toronto residents need another subway parallel to the Yonge subway.
The densities of Richmond Hill (RH) have increased greatly. The current GO service is basically southbound in the morning and northbound in the afternoon and evening (only single track). This is old fashioned train service (two doors per coach) for large batches of riders pulled by a locomotive to one destination, Union Station. It cannot operate in rainy weather because of the flooding threat.
There are minor fixes that can improve the RH track, overcome the flooding, double tracking and working with CN for contention in the northern section.
This can make the RH line a “regional network service”, with 15 minute service in both directions.
This is not a subway service because all the intermediate stops like Sheppard, York Mills, Lawrence, Eglinton and Bloor have to overcome the difference in elevation (tracks in the Valley, stations at the top of the ridge), railway signaling systems limit frequency to 15 minutes and train performance is not like subway cars.
Our problem is defined thusly –
For the Toronto rider, the Yonge subway is overcrowded and what is needed is a second north/south subway parallel to Yonge.
The Richmond Hill riders want frequent service to all the major sectors in Toronto.
It is fantasy to believe we can accomplish the requirements by forcing everything on the Yonge subway. Toronto has to spend $1.5 billion just to widen and add a couple of staircases to the lower platform at Yonge/Bloor.
Upgrading the Richmond Hill GO line is a realistic improvement but falls far short of the need. It’s a stretch to upgrade the service to EMU’s and improved signal service with marginal benefit.
Unless we find a “better” solution we walking into a closed door, eyes wide open.
The City Toronto Manager should really invest in a brains trust of public transit specialists in the Planning Department instead of having so many positions run vacant. Metrolinx should step up and actually do the job it was supposed to do.
LikeLike
True. I was running under the assumption that we were using Metrolinx numbers rather than reality numbers. In reality, the current maximum capacity of the subway is 28,000 passengers/hr. To quote from page 4 of the TTC’s “Line 1 Capacity Requirements” report of April 11, 2019:
As both Steve and this report point out, there are tweaks that can be done to, in theory, increase the capacity to accommodate this demand. ATC will be a significant improvement. But colour me highly skeptical that the necessary discipline is available to consistently achieve 37,700. So if we take the current realistic capacity of 28,000 and compare this to the Metrolinx forecast demand of 20,900 north of Finch, then we obviously have a problem. Even if, by some miracle, we are able to get to 37,700 a majority of the capacity is still consumed by passengers north of Finch, meaning that a lot of people in Toronto are not going to be able to get on the train.
How about the Ontario Line? Will that take enough people to relieve the Yonge subway? Sorry, no.
That is the problem with putting 2.6 million more people into the GTA between now and 2046. That population growth is poised to simply overwhelm our existing transit planning.
LikeLike
I know I won’t have all of the elements together here, but my assumption of a functional YNSE design puts three factors above all other considerations: network, distribution and demand. Each overlapping and interrelating. If cost isn’t a factor (which of course it is), these elements are pre-requisites to building lines/extensions
Network: Extending the line to Steeles “completes” the Yonge service in Toronto. The local bus can go from ~Davisville to Steeles somewhat infrequently (though all stations will eventually be accessible, these stops are further apart). Extending the line to Hwy 407 moves the southern terminus of the Viva Blue route north to meet the Viva Purple/Pink & Orange (which has a certain logic from a network perspective). In order to do this, there must be subway stops at regular intervals (presumably ~2 km suburban spacing) between Steeles & Hwy 407. This would allow the portion now served by Viva Blue to be served principally by the subway and secondarily by a YRT “local Yonge” to supplement the subway service (as 97 Yonge does in Toronto).
Distribution: The “neighbourhood” class stations should be built analogous to Donlands: a minimalist-footprint bus loop above a simple station box. This would work for Cummer/Drewry as well as Royal Orchard & Clark. The Richmond Hill “neighbourhood” stations would benefit from optimized routes that are realigned to meet these stations where possible/practical. The major transfer node in YNSE is clearly at Steeles Station as the junction between York & Toronto. From the TTC point of view, I believe there are only 5 routes [Yonge, Steeles East (express & local), Steeles West (express & local)] that would be served (assuming that Cummer & Drewry either have a loop at “their station” or continue south to Finch station). Where are the 8 York Region buses (assuming Viva Blue terminates at RHC) going to go? The parking lot at Centrepoint? This station is not one to skimp out on, so it is disappointing to read that they intend to go with a surface structure. (I like Lawrence on Steroids™)
Demand: There are two factors driving demand for the extension: (1) moving the terminus of the subway north and therefore (2) pre-existing passengers that were previously on buses are now on (every other) train. Secondary demand, particularly at the “neighbourhood”-class stations is achieved principally through feeder buses (which increase a station’s catchment area), and can be further improved by better local service. Tertiary, and presumably insubstantial demand is walk-ins.
To be candid I don’t really have a problem with this extension provided Metrolinx acknowledges the true scope of the project, if they are going to foist this extension on GTA taxpayers they have to do it right.
Or, to save on postage: double-track the Bala Sub and extend the subway to Steeles only (and spend the “remaining” 4.6 billion on that underground city/bus loop that runs from Bathurst to Bayview under Steeles). That said, there is a precedent (TYSSE) to go to 407. I have no doubt that before I die (in 2063, shortly after Vulcan makes contact with Earth) the Ontario Line will be extended to 407 too.
The YNSE is incomparable to SSE except in scope. There is a logic to this plan in terms of service (whereas SSE involves route gerrymandering to meet an artificial nexus at STC), and a good deal of network building (albeit for York Region) and a small but useful amount of network completion for Toronto. While the SSE would get “points” for adding (3) stations to the network, these benefits are obscured by both the loss of the (6) current ones (RT) and the 3 Transit City lines that would have served so much more of Scarborough’s enormous underserved land mass better by creating a NETWORK.
LikeLike
Bill R correctly observes we need another service parallel to Yonge, and only 60 years ago was there a decent-looking plan for Relief South, North, NE and Relief West all the way out to Islington, which is in Ed Levy’s good book. We’re now in to needing triage transit for the sake of the climate emergency, not just transit riders. That triage must be more open and amenable to ‘roadical’ solutions like surface transit, including on the Don Valley Parkway as one example, and I recollect there was once some study of putting a GO busway on it recently/decade ago.
We can ‘tunnel through the cost barrier’ as Amory Lovins suggested in energy policy if we are smart in one area we can forestall/adapt in another.
Alas, carservative transit – which tends to be what we’ve had for the last couple of decades – tends to burden transit and cities, though if we actually tallied up the costs of private cars in our health care, drainage, congestion, heat etc., we’d maybe not fuss about a billion or two here and there.
One specific thing: the one good thing about the Ontario Line concept is getting up to Eglinton, but shouldn’t be we doing something up to is it Oriole? the GO Station? And that would mean setting out the RofW NOW!, especially at the Eglinton/Don Mills area.
LikeLike
Logically 300-305 Express, 760 and Viva Blue routes would end at RHC; 23/88/91 at Steeles or Finch.
If there are no bus loops at Clark/Royal Orchard, then I would expect 2/5/77 to go to Steeles or Finch.
98/99 can continue to go Finch or end at Steeles to provide local service on Yonge south of 407.
Since there is already a terminal at Finch which is underneath power lines so land can’t really be reused for anything other than parking lot, maybe the YRT routes should just continue to Finch and the bus terminal at Steeles should just be for TTC buses.
LikeLike
Correction- Directions= West=Bathurst St., Vaughan East=Bayview Ave., Markham (Thornhill)
Steve: I am not sure what your point is here. The Langstaff Gateway plan runs from Yonge to Bayview.
COMMENTS:
Vaughan- south of 407 @ Bridge station is large tired parking facility=intermodal transfer site
Steve: Bridge Station is east of Yonge, not in Vaughan. The existing GO parking lot at Langstaff Station might or might not survive Metrolinx development plans, or be incorporated in them.
Bicycle transit onstreet / in valley / local overflow parking / hydro towers in area are omitted.
Steve: Yes. Also the original Secondary Plan had more provision in it for cycling than the new plan implies.
There is no relief midblock arterial twixt Yonge & Bathurst between Clark and 16th/Rutherford.
This is part of city & region long term plan to get cars off roads and south asap by subway and enclosed by park and possible trail in valley under Yonge and highways. (public lands)..
Steve: It may be the Region’s long term plan, but I don’t see much beyond replacing southbound travel with rides on an over-full subway. Meanwhile the anticipated modal split in the Yonge corridor hardly budges.
Also enclave of rich mansions who do not want more houses or development in area=NIMBY with a few retail strip plazas and a school for 2nd language students using transit vs. rich.
Richmond Hill on north side has a mix of housing types and retail plazas-low traffic generators.
FINCH- Surplus Hydro lands and TTC terminal could be used for mixed land use high rise development of mixed income affordable and supportive housing. (cf. Chinese tower at Yonge & freight railroad lands). GO & YRT lands could be repurposed to act as terminal for TTC.
Surplus parking lots can be repurposed into parkland or used for recreational purposes.
Steve: Finch terminal will still be quite busy with TTC’s Finch East and West services. Whether they should be displaced to the existing GO/YRT terminal to the north is a matter for discussion. This would make access to the station for very frequent services more complex than just turning off of Finch Avenue.
As for the parking and the north terminal, they are in the Hydro lands which are not available for development for obvious reasons.
LikeLike
Hi Steve, the most in-depth analysis of a transit issue, as usual. Thank you! When I first heard about Metrolinx wanting to cut back the number of stations on the Yonge extension, there was hardly any info from the news sources. And then, this blog thread popped up with everything that anyone interested in the topic, from the Ontario Minister of Public Transit on down, could possibly want.
However, my concern is about the proposed elimination of the “neighbourhood” stations.
I think that we can all agree that these stations are not going to contribute a lot of new transit users. But, in the long term, nearby to those stations, better transit will encourage higher use of land, both in housing, business, and employment.
I think also that public transit users will greatly appreciate better service that the subway will bring.
Therefore, cutting out the neighbourhood stations is not a good idea, unless the argument to do so is overwhelming.
I am looking at Table 2, where the station costs range from $179 to $524 million, broken down only by “capital costs” and “operating costs”. There is no further breakdown to explain this. The operating costs are double for Royal Orchard than those for Cummer or Clark. The capital costs are all over the map. I am sure that there is a team of financial analysts at Metrolinx that have been working on this, but this leaves me very skeptical, just looking at their results, that there is any true justification to eliminate the neighbourhood stations.
Steve, do you have any further info on this?
Steve: No, I do not. The absence of details on possible stations designs or constraints makes those numbers very suspect. As to development, the real question is whether there is a desire to intensify at those sites. Of course, Ford could just use an MZO to flatten any opposition, but more developable land south of Langstaff Gateway might compete with the preferred location for new buildings. I cannot help thinking of STC which did not exactly build out as planned in part because other locations developed first.
LikeLike
Steve, my opinion on Ontario government transportation projects:
Ontario wants to pay MORE for
– Scarborough subway extension versus better alternatives
– Eglinton West LRT extension (by putting it underground)
– Ontario Line zig-zag up to Queen Street and back down, rather than directly along Front & Wellington Streets
– Hwy 413 toll road versus much, much better alternatives
Ontario wants to go CHEAP for
– Cutting out neighbourhood stations on the North Yonge subway extension
– Ontario Line, by using inferior light-capacity vehicles (of uncertain & incompatible technologies)
– Ontario Line, by surface routing, not tunneling, and disrupting neighbourhoods
– Ontario Line, by planning only up to Eglinton Ave., not Sheppard Ave.
– GO Rail to Bolton (but not any further?) by planning the station 10 km. out of town, whereas a suitable centrally-located site is readily available.
Ontario’s priorities are all backwards, in my opinion!
LikeLike
There is already a massive M2M development under construction SE corner of Yonge/Cummer (4-5 towers, community center, daycare, some townhouses). My guess something like 1500 units in total. But opportunities for redevelopment on the other 3 corners to some extent as well.
There are also lots of places between Cummer/Drewry and Steeles along Yonge where intensification can take place as mostly it is 1-3 storey strip malls and stores/professional offices.
At Steeles and Yonge there are already plans for redevelopment of the strip malls on the north side of Steeles and west side of Yonge between Crestwood and Steeles.
A number of new condo buildings have been built (or under construction) along Yonge between Clark and Crestwood, but still some more strip malls left that could be redeveloped/intensified.
There is some opportunity for higher use of land at Clarke and Royal Orchard. I think developers to some extent have already decided that either subway will get built at some point or alternatively that its close enough to the subway already that it warrants redevelopment.
It is somewhat like the behavior along Sheppard near Downsview station. There for years intensification was taking place within a couple blocks of the station, but recently there are new (or planned) developments closer to Bathurst. On Finch likewise there are some hints at redevelopment closer to Bathurst rather than within 2-3 blocks of Yonge.
LikeLike
Unfortunately, I’m pretty sure that at some time in the past, York Region or the City of Markham decided that they did not want a station at either John or Centre Streets, so they could preserve the historical character of Thornhill village.
LikeLike
Vince: City & province declared John-Centre and uphill to the entrance to the ladies golf course in the valley was a historical district with only low rise development allowed. Vaughan has a recreation facility and some historical homes on the opposite side. This counters [the] station site. Between John & Centre on both sides are mostly 2 storey retail stores. YRT 77 can not have an onstreet loop here, but YRT 3, 98 & 99 could drop off riders going to local residences at Centre.
I believe there are many more concerns about this entered on Metrolinx’s NYSE comment site.
LikeLike
That’s if the LRT is on a fully exclusive right of way. If only partially exclusive, 13,500 is already pushing the LRT limit very hard, with 5 car trains. Building a fully exclusive LRT is a bit cheaper than subway at least in terms of stations, but not a lot else.
There was a window of sorts for arguing for an LRT north of Steeles opening in 2017. I made that argument, and held that belief for too long. Building LRT there in the early 2030s, when it would have to be fully exclusive or over capacity on opening day, isn’t money well spent.
By the 2030s, getting from Hwy 7 and 407 BRTs to Finch should not involve 2 mode changes. It’s going to need to be subway.
Steve: What is really important is that it be easy to choose between the subway and GO at the same fare from the bus interchange station so that those bound for Union and places nearby can take GO easily.
LikeLike
If GO is more expensive to provide, and is a faster and more comfortable ride, then surely a different price can be justified and is more economically efficient.
A confounding factor however – and probably what you’re driving at – is that higher prices on GO shifts demand to the Yonge subway. At the moment, Yonge is at capacity, but that might not be true for a decade or more following the opening of the Ontario Line.
It would be interesting to see the modelling on how much premium fares on GO at RHC shift demand to the YNSE.
Steve: One could argue that in many parts of Toronto a premium fare is “justified” for fast rail modes including GO and the subway. That is the position Metrolinx has taken for years, but it runs counter to the idea that GO should be used as a local rapid transit service. As a parallel, an important facet in modelling the Scarborough Subway and SmartTrack was that ST service on the Stouffville corridor at TTC fares drew riding away from the SSE. That’s one reason the SSE was shifted further east – to trick the model into assigning more riders to the subway.
Don’t forget that the fare paid by a rider is not just the GO fare, but includes the local fare possibly at both ends of a journey. That creates a bigger premium on using GO than the fare for that link mighht imply. Indeed, one could wind up paying more for the local transit access than for the “premium” GO journey.
As for waiting a decade after the OL opens to see how things work out, I don’t think we should base fare policy on what might happen on one part of the network nearly two decades from now.
LikeLike
Thank you Steve, once again, for thoughtfully engaging with all of us on this forum. I know I’m not alone in my appreciation. My arguments lack your depth, but I’ll try to explain my thinking.
While the idea may be to make GO into a local service within the 416, that is not in the works for the 905/519. Stations are too far apart, are usually located away from human activity, and there’s little or no network to interchange with. Local transit connectivity is vastly lower too.
In the Richmond Hill Centre case, the user is making a choice between a local and an express service on the same origin-destination.
There are all sorts of fare schemes that can avoid the double or triple premium of which you write. However, a regional trip between two local trips surely costs more to provide than a single local trip, and one point of view is that in a regional system, price should reflect cost to some extent. This can be true even in a system with a massive “Zone 1”. Let’s take the volumes you’ve written on the subject of fare policy as read (and appreciated by this reader).
As for waiting a decade, no. I think my musing was misunderstood. I expect that the status quo will survive for a while, until it doesn’t, but that a premium price will remain for GO in the 905/519 in most eventualities. Fare policies in different eras will reflect the different pressures of those eras. It’s possible that in the 2040s, a decade after the OL opens, the premium on the RH line alone gets eliminated to help ease overloading on the Yonge line (again). After all, GO lines have always been bespoke, (e.g. different railways, service plans, fares, and perhaps equipment in the future too).
In short, I recognize that there are competing pressures in fare policy, including simplicity, positive externalities of greater public transit use, adhering to economic efficiency (user pay), and avoiding Yonge line crowding, to name a few. Their weighting can change over long periods of time.
Steve: It is worth noting that the crow fly distance from the Bridge Station to Union is less than the distance from Malvern. If we are going to build a subway to Richmond Hill, the least we can do is treat it the same way as places inside the 416 that are further out (NE and NW corners) that will never ever see a subway line.
As for fare schemes, we have to decide whether cost recovery is our primary goal, or mobility as an economic benefit. Rapid transit schemes are routinely “justified” in business cases with the claim that they save riders time, and time equals money. The value placed on mobility is vastly higher than the fares we charge, but fare revenue shows up on the bottom line while mobility does not.
LikeLike