In this section, we begin Chapter 4 of the study with a description of the centre platform option at Bloor-Yonge Station.
Some of the work needed for this scheme was built during construction of 33 Bloor Street East and the Toronto Parking Authority lot between Hayden and Charles Streets. The TTC took advantage of the subway structure being uncovered to widen the station and replace the centre columns with a roof spanning both platforms and tracks. As you can see from visiting the station, this work ends at the northern third of the station because this is physically inside the structure of The Bay.
The section on construction feasibility describes what is necessary to continue this layout further north and it involves, among other things, closing the Bay’s concourse during construction. That entire passage is almost surreal because it details problem after problem with the construction, but forges bravely onward. There’s also the small matter of closing Bloor-Yonge Station because the existing platforms must be removed before the tracks can be relocated.
Chapter 4.1 details the centre platform option at Bloor-Yonge. One challenging part of this is the connection between the new platform and the Bloor subway. This is provided by a new passageway under the southbound platform running north to the point where it encounters the Yonge Station structure. Here it dips down below the existing station to provide access up to the central platform.
Building this connection is very difficult both because it is difficult to get equipment into the affected space, and because of groundwater conditions.
The north end of the station lies within the structure of The Bay and immediately adjacent to the Bell Canada Asquith central office. Widening the structure at the north end is constrained by the location of the buildings.
[Due to the physical size of the drawings, I have scanned them in sections.]
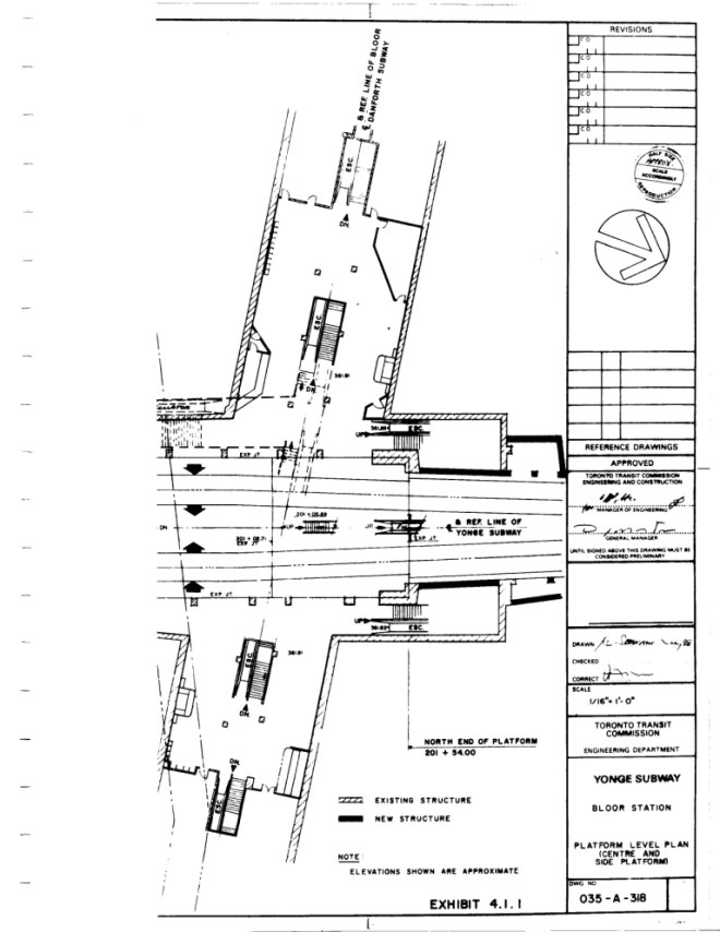
Exhibit 4.1.1 (A) shows the northern third of the new station. Visible here is the taper necessary to fit between existing buildings plus the location of the connecting passage to Yonge Station (dotted lines under the southbound platform).
Exhibit 4.1.1 (B) shows the central part of the new station. The passageway under the southbound platform is clearly visible here. One point to note is that this is the only way to get from the new centre platform to Yonge Station. Pedestrian flow would be unidirectional, but this is still a potential choke point especially if any of the escalators along the way are out of service.
Note also the physical location of the Bloor Station relative to Bloor Street above. The widened part of the street is left over from the days when a streetcar transfer station connected to the subway here. You can see remnants of this in the layout of the subway structure below.
Exhibit 4.1.1 (C) shows the south end of the station. The third platform is new, but the exits through 33 Bloor East have already been built roughly as shown.
Exhibit 4.1.2 is a fascinating drawing looking up, yes, up at the subway structure from below to show how the various elements of Bloor-Yonge Station relate to each other.
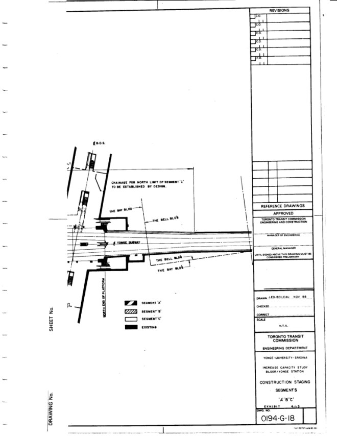
Exhibit 4.1.3 (A) shows the north end of Bloor Station for construction staging purposes. I have included it because it shows the location of the Bay and Bell buildings. The Bay was built around the subway, but the Bell building predates it and cannot be disturbed. This is the main switching office for central Toronto. Originally, it was the “Walnut” exchange, now “92”, and the first electronic exchange “964” is also housed here.
Exhibit 4.1.3 (B) shows the central part of the station and the limit of “Segment C” (described in the text) which begins at the south side of Bloor Street.
Exhibit 4.1.3 (C) shows the south part of the station and “Segment B”. Parts of this already exist, except for the new platform and the relocated tracks.







Back in 1988, I remember that very close operating practice on Yonge. In the AM and between 4 and 5pm the trains moved, BUT, after 5pm, it sometimes took almost 15 minutes for a train to go from Dundas to Bloor.
Trainsets would simply crawl their way up the line and stop a dozen times in the tunnel along the way. If that’s what ATC and 90-second headways will return us to … no thanks!
Sure, you can fit more people on the line, but the travel time is longer and the trip is miserable. The TTC needs to remember what is was actually like back then before it goes down this dumb road. I can honestly say it was even worse than the 15 minute holdups at the Y in the 60s.
LikeLike
Wow, very informative. Thanks for posting that. You mentioned this third platform idea in an earlier post. With a portion of the work already done, is this back on the table as a viable project? Does current construction of 1 Bloor help or hinder this proposal in any way?
I’m curious… 18 feet is a little over 5 metres. That doesn’t seem very wide to me, particularly when you put staircases and escalators in the middle. How does that compare with the width of other centre platform stations?
Practically speaking, what kind of workarounds could possibly replace Yonge and Bloor station for four to six months?
And how can the TTC possibly enforce unidirectional traffic on the platforms?
Steve: 1 Bloor East is west of Bloor Station and south of Yonge Station. The excavation might provide a point of access, but there is a lot of work that must occur under both of the stations.
The existing platform at Union Station is 6.9 metres wide, or about 4.5 feet wider than the proposed platform at Bloor. However, as an unloading only platform, it should not be a place where passengers accumulate as they do today at Union. The other side of the issue, however, is the loss of storage space on the existing platforms.
LikeLike
I’m wondering if the TTC has a timeline to revisit 3rd platform additions to Bloor/Yonge.
A third platform at Bloor would be most effective if the lower Yonge Station on the BD could be widened to receive side platforms as well. In that case, both centre platforms would be used for unloading passengers only, there would be direct access to the intersecting side platforms, and no need to dig a new passage under the BD.
Not sure if this is possible, as I don’t have structural plans for the basements along the BD.
Steve: There actually was a scheme for this, and I remember seeing the model — an impressive piece of architectural rendering. There is a problem with building platforms on the “outside” of Yonge Station. The station is physically inside of the Bay including its structural columns.
Also, your scheme would funnel all of the passengers transferring to the Bloor line down one set of connecting escalators and stairs where the new third platform is directly above your new Yonge Station platforms.
Finally, there could be a problem with the fact that the landings on new Bloor line platforms would probably have to face east-west although the entrances to them on the new Yonge line platform would face north-south. This cannot be done with escalators, and there’s also the need to fit in elevators. It’s probably doable, but not with all of the other structures in the way.
LikeLike
I’m not convinced a better connection at bloor-yonge is the way to go. Stations are the most expensive part of a subway and I still think that we will get more mileage out of a new “Express” subway, even if we had to sacrifice any connection with bloor to get it done
LikeLike